家装设计图效果图卧室怎么画-两个卧室中间是卫生间装修效果?

两个卧室中间是卫生间装修效果?
装修效果可以根据自身的喜好来决定,一般来说,在两个卧室中间放置卫生间可以以现代化、简约、舒适的风格为主,以木质、石质、瓷质等材料来做卫生间的墙面及地面。最好能够选择抗水及耐用的材料,来确保卫生间的健康比较安全。另外,可以考虑引入浴霸、洗手盆、马桶、淋浴喷头等浴室设施进行装修,使其实用性增强。
长2.8米、宽2.4米的儿童房间怎么设计?
感谢邀请,我是“设计show”,专注装修设计领域,我会尽我所能解决大家在装修设计过程中的疑难问题,知无不言。如果觉得我的答案有所帮助,希望能得到大伙的点赞和关注。如果不想看文章的细节分析,可以直接看我后面的答案总结。
现在房产开发商为了在尽可能小的房屋总面积下做出更多的功能空间,往往把一些卧室的空间压缩得特别小。甚至把有些卧室做到2米*2米,完全都不考虑后期的使用。至于题主提出的2.8米*2.4米的儿童房真的还是不错的,设计儿童房完全没问题。
在在装修过程中,平面方案的设计可以说是整个设计方案的灵魂。平面设计方案直接决定了整个室内空间的舒适性。儿童房的设计相比主卧,虽然它面积小,但功能要求一点也不比主卧少,很多情况下,主卧室就是摆一组衣柜+一张床,而儿童房却需要床、衣柜、书桌、书柜(架)。要求更高。
根据题主提供的尺寸,我先绘制了一个框架,虽然没有确定开门的位置(后面再来讨论开门位置的问题)。

儿童房要把床、衣柜、书桌、书柜(架)这些家具摆放进去就需要先了解这些家具的合理尺寸。
床
单人床的常见尺寸有(宽度)1米、1.2米、1.35米这三种规格,1.5米以上的床属于双人床,不建议摆放。很多人担心1米或1.2米的床宽度不够,我在这里可以负责任的说,1.2的床可以睡到小孩大学毕业都不会拥挤,当然床宽点更好,但是儿童房的单人床1.2米是措措有余,适合就行了。
上面说了床的尺寸,但是床是现场制作还是购买成品呢?我的建议是现场制作。之所以上面列举出一些常规尺寸,我的意见是现场制作也要按照常规尺寸来做,避免后期购买床垫和被子时一些不必要的麻烦。现场制作的好处是可以增加更多收纳空间,同时各个细节的尺寸可以更好把握。
书桌
办公书桌的标准尺寸为1.2米长,0.6米宽,0.76米高,这是根据人体工程学所得出来的一个标准尺寸,特别是高度,不要随便更改。长宽和宽度可以适当变化。宽度不低于0.5米,长度不低于1米就可以了。
至于书桌是现场做还是购买成品?这个就看自己的需求,如果木工师傅手艺好,可以现场制作,这样更加符合功能要求。如果想外观效果好,可以购买成品,但注意尺寸一定要符合现场尺寸。

书柜(架)
书架可以利用书桌上面的空间,设计悬挂书架,书架的长度可以与书桌等长做到1.2米。如果觉得不够用,可以直接贯穿床的上方,做成2.4米。
衣柜
因为房间的宽度在2.4米,所以减掉床的长度后,在床尾或床头可以设计0.4米深的衣柜,因为是儿童房的衣柜,内部的空间可以主要设计成叠衣区,柜门最好设计成平开门。衣柜可以设计在床头或床尾都没问题。

因为房间的长度在2.8米,减去1.2米的床后,理论上可以摆放1.6米的书桌,上面说了书桌的长度1.2米长就够用了,如果觉得衣柜不够用的话可以另外在书桌边上做0.4米的衣柜,这个衣柜的深度与书桌同宽,可以挂衣服完全没问题。

如果房间的开门位置不一样,也可以完全按照上面的布置来设计。

错误案例
尽量不要把衣柜和书桌设计成转角形式,虽然这样衣柜的理论尺寸可以做得更大,但是会以致有一截衣柜门不方便开启,在实际使用过程,不管是衣柜还是书桌都不方便使用。还远没有设计“一”字形的使用舒适。

最后我发几张与平面方案类似的效果图和完工效果。



总结
儿童房单人床的宽度尺寸1.2米就足够了,没必要做得更宽,书桌的尺寸要注意长宽,购买成品时避免过大或过小,所有家具尽量不要设计成转角形式,不方便使用。
本文由“设计show”原创回答,希望对大家有用,谢谢支持!
净尺寸2.4米*2.8米的儿童房,室内家俱怎么布置才好?根据家俱的常规尺寸,床的长度为2.0米~2.1米,衣柜深度550MM~650MM,书桌宽度600MM。此间儿童房适合布置两样组合家俱,一样是床和衣柜的组合,一样是书桌和书柜的组合,按照房间尺寸,床和衣柜组合尺寸长*宽为2.8米*1.2米,靠长边方向,其中床部分为2.1米*1.2米,衣柜部分为0.7米*1.2米,书桌和书柜组合1.2米*(1.2米~1.6米),保障书桌长度不少于0.8米,书桌靠床,对着窗,书柜靠墙。详见下面几张图。




小卧室女孩房怎样装修与布置?
您好,我是睿宝,从事室内设计15年,爱设计爱生活,每日解决家居、装修难题,关注行知,服务万家,很高兴回答您的问题!
关于小卧室女孩房怎样装修与布置?
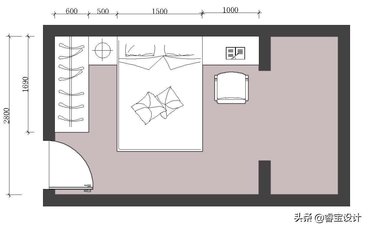
针对卧室空间做了两个平面规划1方案
方案一:常规型布局

1、入户门左侧考虑600*1690衣柜
2、床尺寸为1500*2000,放一个床头柜
3、右侧为1米宽书桌,上面可以考虑书架



1、入户左侧1500*550衣柜
2、中间位1500*2000榻榻米
3、右侧上边为1000*550储物柜或者书柜
4、下面为1250书桌,上面为书架



小结:通过对户型的分析与儿童功能实用性做的平面布局方案,希望这些建议可以帮助到你,具体装修风格依据孩子的需求而定。
回答不易,如果觉得本文有帮助的话,请劳烦为小编点个赞,以示鼓励,如果觉得意见不足,欢迎大家发表评论,感谢阅读,欢迎收藏!
视频加载中...
朋友你好,刚看了下您这间儿童房的空间,由于不知道阳台外墙部分是不是承重墙,我就只给你做了两个不打通阳台的平面设计方案,第一种是将儿童床布置在卧室门旁边,将书桌放到床尾的部分,同时在靠床的墙面上布置了一个悬空的书架,这样就能最大化的将空间利用起来。另一个方案就相对比较简单,抛弃了书桌、书架等这些常规的布置,直接将房间布置成一个可爱的儿童房,在墙面上,用了一个浅灰蓝的色调,这种颜色会给人一种安静沉稳的感觉,比较利于睡眠,同时也不像粉色那样容易过时。以上就是我给您的建议,希望您能用的上。
觉得文章有用就打赏一下文章作者
支付宝扫一扫打赏

微信扫一扫打赏


还没有评论,来说两句吧...